15
ΠΏΛΗΣΗ
#ID 2050
Αθήνα Διαμέρισμα, Μεταμόρφωση
€160,000 €1,798/τ.μ.
Στοιχεία Ακινήτου
Δείτε Περισσότερα
Περιγραφή
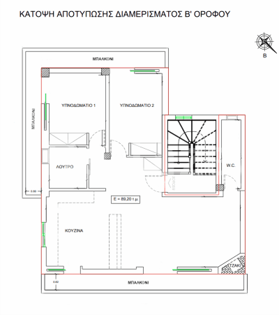
Προς πώληση διαμέρισμα Β΄ ορόφου σε τριώροφη οικοδομή χωρίς ασανσέρ, επί της οδού Ναρκίσσου στη Μεταμόρφωση. Το ακίνητο διαθέτει λειτουργική διαρρύθμιση και αποτελείται από χωλ, ευρύχωρη σαλονοτραπεζαρία με ενιαία κουζίνα, λουτρό, W.C., δύο άνετα υπνοδωμάτια και δύο εξώστες. Υπάρχει προεγκατάσταση θέρμανσης (χωρίς σώματα καλοριφέρ), ενώ προσφέρει και δυνατότητα διαμόρφωσης σύμφωνα με τις ανάγκες του νέου ιδιοκτήτη, καθώς ενδείκνυται για μερική ανακαίνιση σε κουζίνα και χώρους υγιεινής. Βρίσκεται σε προνομιακή τοποθεσία, με άμεση πρόσβαση σε αγορά, μέσα μαζικής μεταφοράς και την Αττική Οδό, καθιστώντας το ιδανική επιλογή τόσο για ιδιοκατοίκηση όσο και για επένδυση. Η αγγελία περιέχει φωτορεαλιστικές φωτογραφίες.
Το ακίνητο βρίσκεται υπό τη διαχείριση της ΝΜ Properties.
Κωδικός ακινήτου: 2050
Χαρακτηριστικά Ακινήτου
Τζάκι
Γιατί να κάνεις εγγραφή στη ReWize
Κάνε εγγραφή και ξεκλείδωσε
τη δύναμη του ReWize Panel
Η αγορά ακινήτων τώρα βρίσκεται στην οθόνη σου!
Απόκτησε πλήρη πρόσβαση στην πιο εξελιγμένη
πλατφόρμα ακινήτων στην Ελλάδα.
Αγαπημένα ακίνητα
Αποθηκευμένες ζητήσεις
Στατιστικά
Προσθήκη ακινήτου
Χώροι ανα επίπεδο
2ος Όροφος
Σαλόνι 1
Υπνοδωμάτια 2
Μπάνια 1
WC 1
Ιδ. Μπάνιο 0
T.M. 89
Τι Υπάρχει Κοντά
Αποστάσεις με περπάτημα
Αποστάσεις με οδήγηση
Δείτε Περισσότερα
Περιοχή
A map is loading
Παρόμοια Ακίνητα
Κούνης Ιωάννης Στέφανος+30 2311 24.15.60€160,000 €1,798/τ.μ.
Μήνυμα














